Beschrijving
Op een rustige en fijne locatie in de wijk Galecop ligt deze goed onderhouden patiowoning met energielabel B en stadsverwarming. Een comfortabele woning met een praktische indeling, twee slaapkamers, een zonnige patio én een dakterras van ca. 17m2.
De woning ligt in de populaire en rustige woonwijk Galecop. Een groene en kindvriendelijke omgeving met diverse speelplekken en parken in de buurt. Voorzieningen zoals winkels, scholen en sportfaciliteiten zijn allemaal op korte afstand aanwezig.
De bereikbaarheid is uitstekend. Met de auto zit je binnen enkele minuten op de A2 en A12, waardoor steden als Utrecht snel te bereiken zijn. Ook het openbaar vervoer is goed geregeld, met bus- en tramverbindingen in de directe omgeving.
Indeling.
Begane grond:
Je komt binnen in de hal met meterkast en toilet. De keuken ligt aan de voorzijde en is functioneel ingericht. Vanuit de hal loop je door naar de woonkamer, die zich aan de achterzijde bevindt en prettig licht is. Hier is voldoende ruimte voor zowel een zit- als eethoek. Via de woonkamer heb je direct toegang tot de patio: een beschutte en onderhoudsvriendelijke buitenruimte waar je al snel lekker zit. Aan de achterzijde van de keuken bevindt zich een praktische berging, ideaal voor opslag en fietsen.
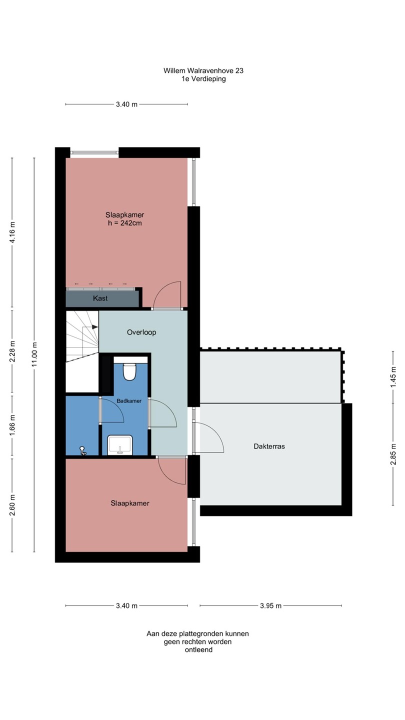
Eerste verdieping:
Op de eerste verdieping geeft de overloop toegang tot twee slaapkamers, de badkamer en extra bergruimte. De slaapkamers bevinden zich aan de voor- en achterzijde, zijn ruim van formaat en voorzien van airconditioning.
De badkamer is praktisch ingedeeld en voorzien van een douche, een wastafel en 2e toilet.
Daarnaast is er via de overloop toegang naar het dakterras van ca. 17m2. Een fijne extra buitenruimte met veel privacy.
Bijzonderheden:
- Goed onderhouden patiowoning met een praktische indeling;
- Gelegen in de populaire wijk Galecop;
- De woning heeft een patio en een zonnig dakterras van ca. 17 m2;
- De 2 slaapkamers zijn voorzien van airconditioning;
- De woning heeft 11 zonnepanelen (lease);
- Verwarming en warm water middels stadsverwarming;
- Gunstig gelegen nabij alle denkbare voorzieningen;
- De woning heeft een definitief energielabel B.
Interesse in dit huis? Schakel direct jouw eigen NVM-aankoopmakelaar in.
De NVM-aankoopmakelaar komt op voor jouw belang en bespaart tijd, geld en zorgen.
Adressen van collega NVM-aankoopmakelaars in Nieuwegein zijn te vinden op Funda.