Beschrijving
Stap binnen bij Pieter de Hooghhage 47 en laat je verrassen door de ruimte, de fijne indeling en het dakterras. Deze woning is met zorg ingedeeld en biedt volop plek om comfortabel te wonen, te ontspannen en samen te genieten. Een huis waar je elke dag met plezier thuiskomt.
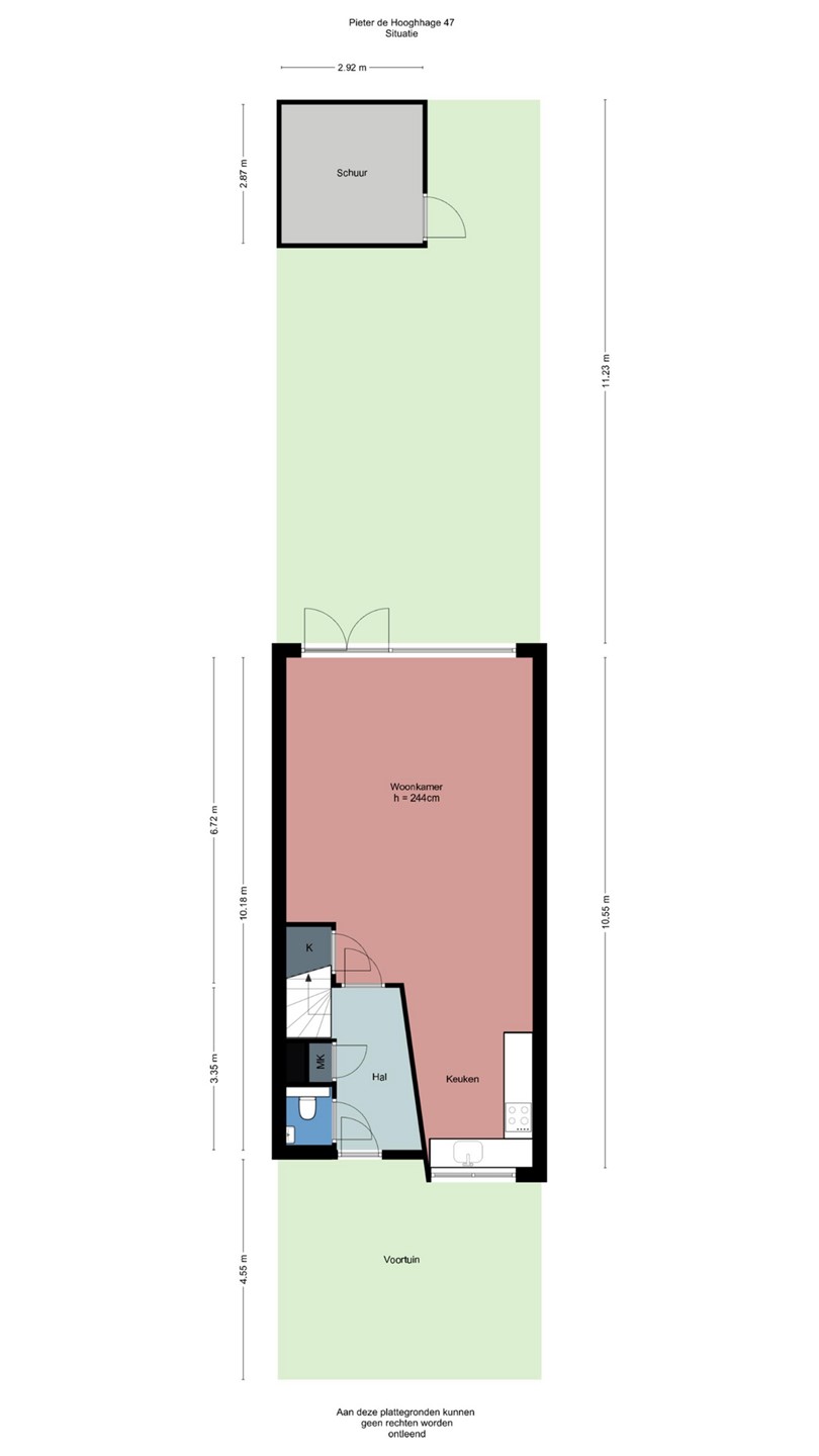
Indeling.
Begane grond:
Je komt binnen in de hal met toilet en meterkast. Vanuit hier loop je door naar de ruime en lichte woonkamer, een fijne plek waar je moeiteloos een gezellige zithoek en een grote eettafel kwijt kunt.
Aan de voorzijde bevindt zich de keuken, praktisch opgesteld en direct verbonden met de leefruimte. Koken en samen zijn gaan hier vanzelf hand in hand. De ruime half open keuken is voorzien van diverse apparatuur te weten; een inductie kookplaat met downdraft afzuiging, een kokend waterkraan, een oven en een vaatwasser.
De tuingerichte zithoek is een plek om tot rust te komen. Dankzij de openslaande deuren naar de achtertuin wordt binnen moeiteloos met buiten verbonden. Op zonnige dagen zet je de deuren open en verleng je de leefruimte naar de tuin.
De begane grond is afgewerkt met een fraaie tegelvloer en nette wandafwerking. De tegelvloer is niet alleen stijlvol, maar ook bijzonder comfortabel dankzij de vloerverwarming. Dit zorgt het hele jaar door voor een aangename warmte en een strak, rustig geheel. Als extra sfeermaker is er een houtkachel, die op koudere dagen zorgt voor een warme gloed en een knusse ambiance.
Eerste verdieping:
De overloop geeft toegang tot drie slaapkamers, stuk voor stuk fijn ingedeeld en veelzijdig in gebruik. Perfect als slaapkamers voor het gezin, maar ook ideaal voor een thuiswerkplek of hobbykamer. De badkamer is compleet en voorzien van een ligbad, wastafel en toilet – een fijne plek om de dag rustig te beginnen of juist ontspannen af te sluiten.
Tweede verdieping:
De bovenste verdieping is praktisch ingedeeld. Hier vind je een ruime 4e slaapkamer met een aangrenzende ruime inloopkast. De kamer is zeer geschikt als master-bedroom, luxe logeerkamer of werkkamer. Het pluspunt van deze verdieping is het ruime, op zuiden gelegen dakterras. Men kan hier genieten van de zon, een goed boek, een borrel met vrienden of gewoon even tot rust komt na een drukke dag. Ook kan het dakterras bij de woning worden getrokken als een riante extra kamer.
Tuin:
De woning beschikt over een diepe achtertuin op het zuiden, waar u de hele dag zon heeft. De tuin is voorzien van een stenen berging en een achterom, ideaal voor fietsen en tuinspullen.
Bijzonderheden:
- Goed onderhouden tussenwoning met 4 slaapkamers, airconditioning en 7 zonnepanelen;
- Gelegen in de gewilde en kindvriendelijke wijk Galecop;
- Nabij winkels, scholen, openbaar vervoer, uitvalswegen, parken en overige voorzieningen;
- De woning is voorzien van vloerverwarming op de begane grond;
- De woonkamer is voorzien van een sfeervolle houtkachel;
- Modern afgewerkte keuken met diverse inbouwapparatuur
- Nette badkamer met ligbad, inloopdouche, toilet en een wastafel;
- Er is een zonnige achtertuin én een dakterras op de 2e verdieping, beiden gelegen op het zuiden;
- Vrij uitzicht aan de voorzijde;
- De woning heeft een definitief energielabel A+.
Interesse in dit huis? Schakel direct uw eigen NVM-aankoopmakelaar in.
Uw NVM-aankoopmakelaar komt op voor uw belang en bespaart u tijd, geld en
zorgen. Adressen van collega NVM-aankoopmakelaars vindt u op Funda.