Beschrijving
Karnweide 39 – in een leuke en ruim opgezette straat ligt deze schitterende, instapklare, compleet en verrassend ruim ogende gerenoveerde woning met 3 ruime slaapkamers. Voor de woning kunt u uw auto gratis parkeren.
De woning is gelegen in een kindvriendelijke en moderne woonwijk met volop voorzieningen in de buurt. Op korte afstand vindt u scholen, supermarkten, sportverenigingen en speelgelegenheden. Voor wie graag de natuur in gaat: wandel- en fietsroutes liggen bijna om de hoek. Met het openbaar vervoer bent u zo in het centrum van de stad en dankzij de goede verbindingen met de uitvalswegen A2 en A12 en A27 rijdt u in korte tijd naar de omliggende steden.
De woning grenst aan de achterzijde aan een rustig autovrij hofje met een speeltuin.
Indeling
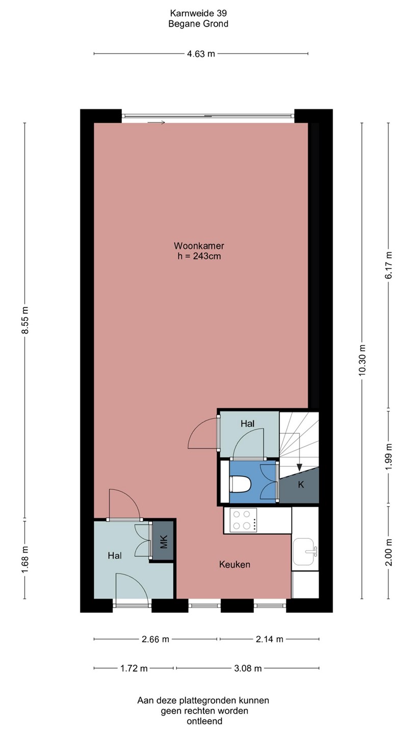
Begane grond:
Via de onderhoudsvrije voortuin stapt u deze compleet gerenoveerde woning binnen. Via de hal bereikt u de ruime en lichte woonkamer. De gehele benedenverdieping is voorzien van een visgraatvloer. Aan de voorzijde van de woning ligt de halfopen keuken voorzien van koel-vriescombinatie, inductiekookplaat, vaatwasser en een combi-oven. De ruimte naar de trap naar de eerste verdieping is afgesloten en vanuit hier kunt u ook het toilet betreden. Onder de trap is nog praktische opbergruimte.
Via de schuifdeur bereikt u de ruime, onderhoudsvriendelijke achtertuin. Net als de binnenkant van de woning heeft ook de achtertuin een complete metamorfose ondergaan. Onder de nieuw gebouwde overkapping kan ook bij regenachtig weer genoten worden van de tuin. De tuin heeft een praktische achterom. Dit maakt het mogelijk de tuin te betreden langs de achterzijde zodat onder andere de fietsen gemakkelijk in de berging geplaatst kunnen worden.
Eerste verdieping:
Op de eerste verdieping aangekomen loopt u rechts naar de zeer ruime masterbedroom voorzien van airco. Door de plaatsing van de dakkapel is hier volop licht en ruimte gecreëerd. Aan de voorzijde van de woning ligt een tweede, ruime slaapkamer. Ook hier is de moderne, visgraatvloer vanuit de benedenverdieping doorgelegd. De badkamer is voorzien van douche, toilet en wastafelmeubel en wordt verwarmd middels een infraroodpaneel.
Tweede verdieping:
Via de vaste trap komt u aan op de zolder. Hier ligt de derde, ruime slaapkamer, wederom voorzien van een airco. Door de plaatsing van de dakkapel en het dakraam komt er vanuit 2 zijden zonlicht de kamer binnen. Op deze verdieping is ook de wasmachine en droger opstelling te vinden en is er voldoende opbergruimte.
Bijzonderheden:
- Recent compleet gerenoveerde woning met lichte woonkamer;
- Gelegen in populaire, kindvriendelijke wijk Batau Noord;
- Onderhoudsvrije voor- en achtertuin;
- De woning is voorzien van airco’s;
- Beneden is er een 5kW-unit die ook wordt gebruikt voor verwarming.
- Op de tweede etage is in elke kamer een eigen unit aanwezig, evenals op zolder;
- Er zijn 3 ruime slaapkamers;
- Verwarming en warm water middels stadsverwarming;
- Uitstekende bereikbaarheid met auto en openbaar vervoer;
- Op de eerste en tweede etage ligt een pvc-vloer, en op zolder ligt dezelfde vloer in identieke kleur, maar dan als plankenvorm.
- Er is een goed industrieel alarmsysteem dat blijft hangen;
- Op dit systeem zijn ook de brandmelders aangesloten en alles is via een app bedienbaar.
Interesse in dit huis? Schakel direct jouw eigen NVM-aankoopmakelaar in.
De NVM-aankoopmakelaar komt op voor jouw belang en bespaart tijd, geld en zorgen.
Adressen van collega NVM-aankoopmakelaars in Nieuwegein zijn te vinden op Funda.