Beschrijving
Deze uitstekend onderhouden, ruime en lichte familiewoning ligt in de geliefde wijk Galecop, aan een brede straat met vrij uitzicht op een groenstrook. Hier woon je rustig en groen, met alle comfort van een moderne woning binnen handbereik. De woning biedt volop leefruimte met een ruime keuken, een lichte woonkamer, 3 slaapkamers, 24 zonnepanelen en airconditioning op de 2e verdieping. Daarnaast geniet je van zowel een zonnige voor- als achtertuin, een stenen berging en een handige achterom. Voor de deur is er voldoende gratis parkeergelegenheid en er zijn voldoende openbare laadplekken in de directe omgeving.
Wat deze woning extra aantrekkelijk maakt, is de ligging in Galecop. Deze populaire wijk staat bekend om de fijne leefomgeving met veel groen en uitstekende voorzieningen. Denk aan goede scholen, sportfaciliteiten, winkels en zorgvoorzieningen – alles dichtbij. Bovendien woon je hier bijzonder centraal: met bedrijvenpark Papendorp om de hoek, snelle verbindingen naar de A2, A12 en A27 en een uitstekende OV-verbinding sta je binnen korte tijd in Utrecht.
Indeling.
Begane grond:
Je stapt binnen in de hal met toilet, meterkast de trap naar boven en een tussendeur naar de ruime woonkamer.
Aan de voorzijde vind je de moderne keuken, uitgevoerd in rustige, neutrale kleuren en voorzien van alle gewenste inbouwapparatuur te weten; een kookplaat, afzuigkap, combi-oven, koelkast, vriezer en een vaatwasser. De woonkamer en keuken zijn voorzien van vloerverwarming.
De woonkamer met een sfeervolle pelletkachel, ligt aan de achterzijde. Vanuit hier loop je via de openslaande deuren zo de tuin in. Binnen en buiten lopen hier mooi in elkaar over, ideaal voor lange zomeravonden. De tuin is ruim 13 meter diep
Eerste verdieping:
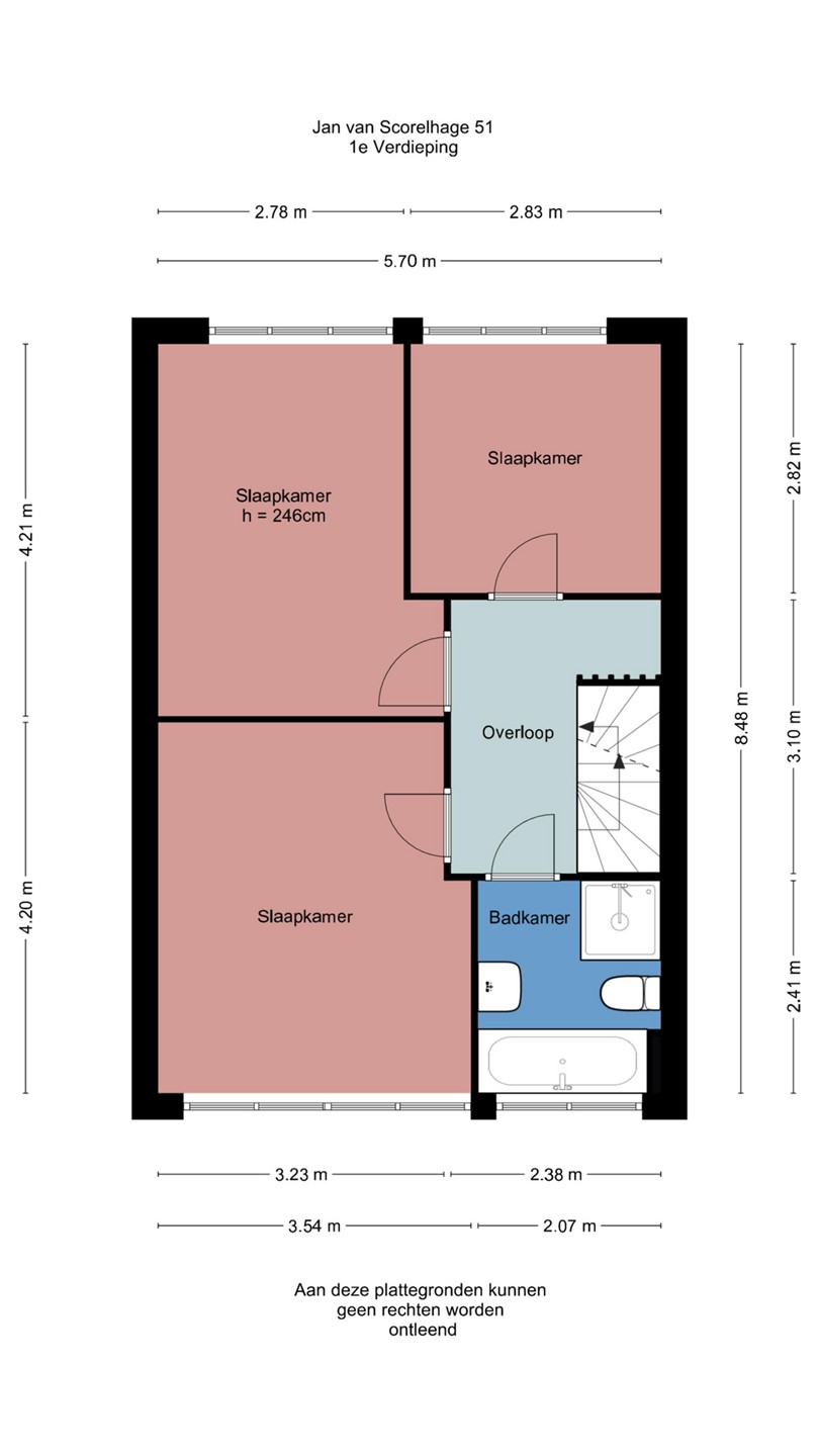
Op deze verdieping vind je drie comfortabele slaapkamers, allemaal praktisch in te delen. De badkamer is compleet met een ligbad, douche, toilet en wastafel. De badkamer is volledig betegeld en biedt alles wat je nodig hebt om de dag beginnen of juist af te sluiten.
Tweede verdieping:
De zolderverdieping is verrassend ruim en multifunctioneel. Op de voorzolder is plek voor zowel de wasmachine als de wasdroger. Op deze verdieping hangt ook de airconditioning. De grote zolderkamer met dakraam is perfect als extra slaapkamer, werkruimte of hobbykamer. Achter de knieschotten is extra bergruimte.
Tuin:
De achtertuin is netjes aangelegd en biedt volop ruimte om te genieten. Of je nu wilt loungen in de zon, een boek wilt lezen in de schaduw of gezellig wilt barbecueën met de hele familie, het kan hier allemaal. Achterin bevindt zich bovendien een praktische vrijstaande berging.
Bijzonderheden:
- Perfect onderhouden tussenwoning, gelegen in de populaire wijk Galecop;
- De begane grond is modern afgewerkt en de zithoek heeft een sfeervolle pelletkachel;
- De woonkamer en keuken zijn voorzien van vloerverwarming;
- De woning is voorzien van 24 zonnepanelen;
- De 2e verdieping biedt mogelijkheden voor extra (slaap)kamers en is voorzien van airconditioning;
- Verwarming en warm water middels stadsverwarming;
- De woning heeft een definitief energielabel A+.
Interesse in dit huis? Schakel direct uw eigen NVM-aankoopmakelaar in.
Uw NVM-aankoopmakelaar komt op voor uw belang en bespaart u tijd, geld en
zorgen. Adressen van collega NVM-aankoopmakelaars vindt u op Funda.