Beschrijving
Deze goed onderhouden twee-onder-een-kapwoning met oprit en garage is rustig gelegen aan de rand van Hagestein, nabij Hoef en Haag. Er zijn in totaal 5 slaapkamers en op de tweede verdieping zijn twee dakkapellen. De achtertuin is gelegen op het zuidoosten en beschikt over een grote overkapping.
Het karakteristieke dorp Hagestein wordt gekenmerkt door een weids uitzicht over water en de weilanden en maakt deel uit van de gemeente Vijfheerenlanden, behorende tot de provincie Utrecht. Alle denkbare voorzieningen waaronder; winkels, gezondheidsvoorzieningen, sportverenigingen en zowel basisscholen als voortgezet onderwijs bevinden zich in de omgeving. Diverse uitvalswegen (o.a. A2 en A27) zijn snel te bereiken.
Indeling:
Begane grond:
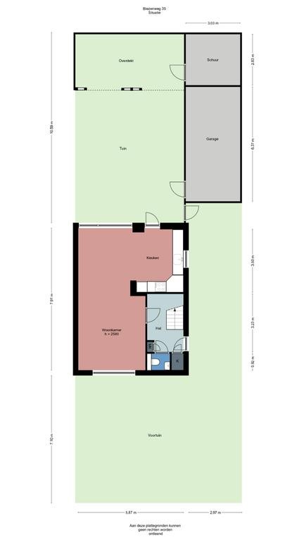
Entree, hal, meterkast, toiletruimte met fontein, trap naar de 1e verdieping, tussendeur naar de woonkamer.
De woonkamer heeft een sfeervolle zithoek die uitkijkt over de voortuin en de omgeving. Aan de achterzijde bevindt zich de eethoek en de half open keuken. De keuken is voorzien van diverse apparatuur te weten; een inductiekookplaat(2021), afzuigkap, combi-oven, koelkast en een vaatwasser.
Via de openslaande deur in de keuken is de zonnige achtertuin te bereiken. De achtertuin is gelegen op het zuidoosten, is voorzien van een schuur met overkapping en heeft elektrische zonwering bij het terras. Via de achtertuin is tevens de garage bereikbaar.
1e verdieping:
Vanaf de overloop zijn de drie slaapkamers en de badkamer bereikbaar. Twee slaapkamers bevinden zich aan de achterzijde. de derde slaapkamer en de badkamer bevinden zich aan de voorzijde. De badkamer is modern afgewerkt met betoncire wandafwerking en voorzien van een 2e toilet, douchecabine, een dubbele wastafel met badmeubel en een designradiator.
2e verdieping:
Via de vaste trap is de overloop met wasmachine- en wasdroger aansluiting bereikbaar. Op deze verdieping bevinden zich twee dakkappellen, twee slaapkamers en een praktische bergruimte. Middels een klein luikje op de overloop is de praktische bergvliering bereikbaar.
Bijzonderheden:
- Goed onderhouden twee-onder-een-kapwoning met oprit, garage, berging, een nette keuken en gemoderniseerde badkamer(2021);
- Er zijn in totaal 5 ruime slaapkamers;
- Rustig gelegen aan de rand van Hagestein maar wel dichtbij alle denkbare voorzieningen en uitvalswegen;
- Voldoende parkeergelegenheid op eigen terrein dankzij de oprit en de garage;
- De woning is volledig voorzien van HR++ glas;
- Aan de voor- als achterzijde van de 2e verdieping heeft de woning een dakkapel;
- Verwarming en warm water middels een Remeha Cv-ketel uit 2015(eigendom);
- De woning heeft een definitief energielabel E.
Interesse in dit huis? Schakel direct uw eigen NVM-aankoopmakelaar in.
Uw NVM-aankoopmakelaar komt op voor uw belang en bespaart u tijd, geld en zorgen.
Adressen van collega NVM-aankoopmakelaars in Nieuwegein vindt u op Funda.