Beschrijving
Deze "one of a kind" hoekwoning is werkelijk een klasse apart. Van dit type bestaat er slechts één, gelegen op een mooie locatie binnen de wijk Galecop. Met een indrukwekkend woonoppervlak van maar liefst 220 m², een bijzondere indeling, een balkon en een royaal dakterras van 19 m2 onderscheidt deze woning zich op alle fronten.
De woning is de afgelopen jaren volledig en hoogwaardig gerenoveerd en verkeert in een uitstekende staat van onderhoud. Een instapklare woning voor iedereen die echt iets bijzonders zoekt.
Indeling.
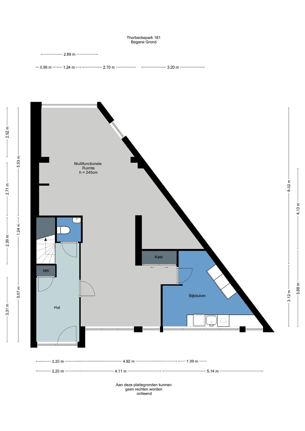
Begane grond:
De entree geeft toegang tot een ruime hal met meterkast en moderne toiletruimte. Vanuit hier bereikt u via een tussendeur de royale multifunctionele ruimte die momenteel dienst doet als mancave en desgewenst plaats biedt aan 2 auto's.
Deze ruimte is afgewerkt met een epoxyvloer, strak gestucte wanden en plafond en beschikt over een elektrische en geïsoleerde garagepoort. Momenteel is de ruimte in gebruik als garage, maar dankzij de hoogwaardige afwerking, de volledige isolatie, de vele ramen en het royale formaat kan deze moeiteloos dienen als kantoor of praktijkruimte aan huis, atelier, fitnessruimte, hobbyruimte of zelfs als extra slaapkamers.
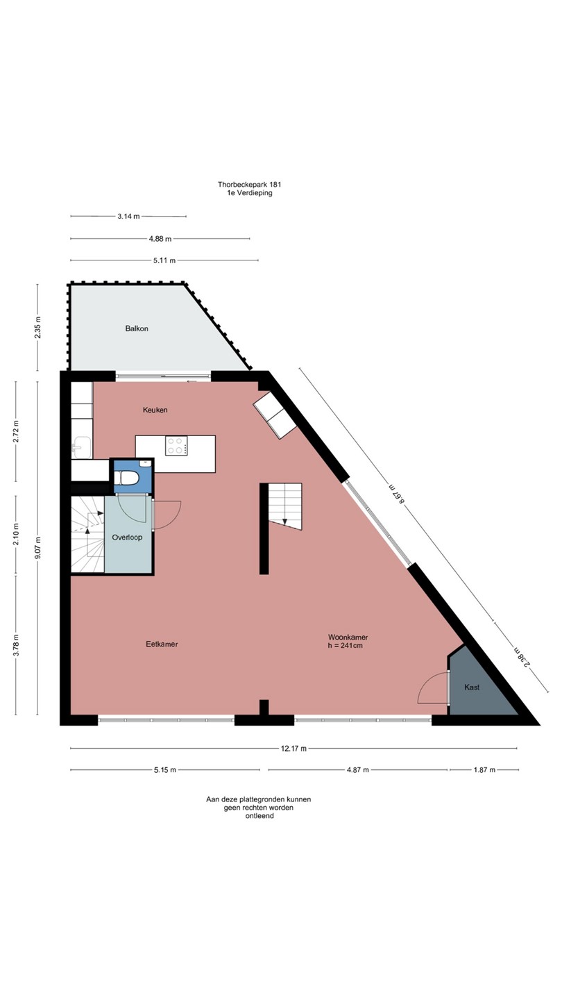
Eerste verdieping (Woonetage):
De eerste verdieping vormt het absolute hart van de woning. Hier bevindt zich de spectaculaire woonkamer van ruim
79 m² met rondom raampartijen en vrij uitzicht op de Galecopperdijk. De woonetage is voorzien van een stijlvolle plavuizenvloer in houtlook met vloerverwarming en een airco-unit die tevens kan verwarmen.
De moderne open keuken met royaal kookeiland is uitgerust met diverse inbouwapparatuur, waaronder een koel-/vriescombinatie, afzuigkap, combi oven-magnetron, elektrische kookplaat en vaatwasser.
Vanuit de keuken bereikt u het eerste zonnige balkon van circa 9,3 m², gunstig gelegen op het zuidwesten. Hier geniet u optimaal van de middag- en avondzon.
Tevens is op deze woonlaag een extra toilet gerealiseerd wat het totaal aantal toiletten in de woning op 3 brengt.
Tweede verdieping:
Op deze verdieping bevinden zich drie royale slaapkamers. Twee kamers beschikken over praktische vaste kast en zijn voorzien van airconditioning voor optimaal comfort.
De luxe badkamer is modern uitgevoerd en voorzien van een derde toilet, een ruime inloopdouche en een stijlvol badmeubel met dubbele wastafel.
Op de tweede verdieping bevindt zich tevens het royale dakterras van circa 19 m². Dit terras is qua afmetingen vergelijkbaar met wat men normaal gesproken als zitruimte in een conventionele tuin zou benutten maar biedt volop privacy en een panoramisch uitzicht op veel groen en de skyline van Utrecht. Een exclusieve buitenruimte waar u in alle rust kunt loungen, dineren en genieten van de (ondergaande) zon.
Bijzonderheden:
- Een royale, unieke en veelzijdige woning op een aantrekkelijke locatie in de wijk Galecop;
- De woning heeft maar liefst 220 m² woonoppervlakte;
- Volledig geïsoleerde multifunctionele ruimte van 55 m2 met elektrische garagepoort en gestucte wanden;
- Voldoende ruimte om gelijktijdig 2 auto's en een motor binnen te parkeren;
- 12 zonnepanelen en airconditioning in de woonkamer en twee slaapkamers;
- De woonkamer op de 1e verdieping is voorzien van vloerverwarming;
- De woning verkeert in een uitstekende staat van onderhoud en heeft een luxe afwerkingsniveau;
- Centraal gelegen, op loopafstand van alle denkbare voorzieningen.
- Verwarming en warm water middels stadsverwarming;
- De woning heeft een definitief energielabel A.
Interesse in dit huis? Schakel direct uw eigen NVM-aankoopmakelaar in.
Uw NVM-aankoopmakelaar komt op voor uw belang en bespaart u tijd, geld en zorgen.
Adressen van collega NVM-aankoopmakelaars vindt u op Funda.