Beschrijving
Ferdinand Bolhage 2 – comfortabel en duurzaam wonen dankzij de aanwezigheid van zonnepanelen, airconditioning en vloerverwarming. In de gewilde wijk Galecop in Nieuwegein staat deze verzorgde hoekwoning. Een woning waar alles draait om comfort, duurzaamheid en een prettige leefomgeving. Wat direct opvalt is het vele daglicht wat naar binnen komt, dankzij de raampartijen in zowel de voor- zij- als achtergevels.
De woonkamer is voorzien van vloerverwarming en airconditioning, waardoor je in elk seizoen geniet van een optimaal klimaat! De keuken en badkamer zijn netjes en praktisch ingericht, zodat je de woning direct kunt betrekken. Op de 1e verdieping zijn 3 slaapkamers aanwezig, waaronder een ouderslaapkamer met airco. De tweede verdieping biedt een open zolderruimte die zich uitstekend leent voor werken, hobby’s of logeren.
De wijk Galecop staat bekend als een groene en rustige woonwijk met een prettig dorps karakter. Voorzieningen zoals scholen, sportverenigingen, speelplekken en winkels bevinden zich op korte afstand. Met de fiets ben je snel in het centrum van Nieuwegein en dankzij de goede verbinding met de A12 en A27 ben je binnen enkele minuten in Utrecht of elders in de regio.
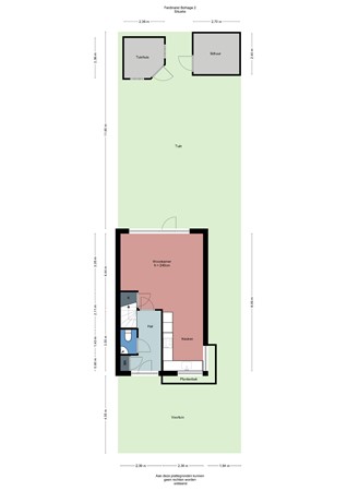
Indeling.
Begane grond:
Entree met hal, meterkast en toilet. Vanuit de hal toegang tot de lichte woonkamer, voorzien van vloerverwarming en airconditioning. Aan de voorzijde bevindt zich de keuken met een praktisch werkblad en diverse inbouwapparatuur. Vanuit de woonkamer is er toegang tot de ca.12 meter diepe achtertuin.
Eerste verdieping:
Overloop met toegang tot drie slaapkamers, waarvan 2 zijn voorzien van airconditioning. De moderne badkamer beschikt over een inloopdouche, wastafel en toilet en is uitgerust met vloerverwarming.
Tweede verdieping:
Via een vaste trap bereik je de zolderverdieping. Deze open ruimte is geschikt als werk-, hobby- of logeerkamer en kan volledig naar eigen inzicht worden gebruikt. Er is veel bergruimte achter de knieschotten.
Buitenruimte:
De woning beschikt over een onderhoudsvriendelijke tuin rondom de woning met een eigen achterom.
De achtertuin is gelegen op het westen en ca 12 meter diep.
Bijzonderheden:
- Comfortabel en duurzame hoekwoning gelegen in de populaire wijk Galecop;
- Op korte afstand bevinden zich alle denkbare voorzieningen en uitvalswegen;
- De woning is voorzien van 8 zonnepanelen, airconditioning en vloerverwarming;
- Eigen laadpaal voor de elektrische auto;
- Vloerverwarming in zowel woonkamer als de badkamer;
- Er zijn drie ruime slaapkamers op de 1e verdieping;
- Open multifunctionele zolderverdieping geschikt voor werkruimte of realiseren van een extra slaapkamer;
- Verwarming en warm water middels stadsverwarming;
- De woning heeft een definitief energielabel A.
Interesse in dit huis? Schakel direct uw eigen NVM-aankoopmakelaar in.
Uw NVM-aankoopmakelaar komt op voor uw belang en bespaart u tijd, geld en zorgen.
Adressen van collega NVM-aankoopmakelaars vindt u op Funda.