Beschrijving

Deze comfortabele en verzorgde eindwoning aan de Zwolseveste 8 in Nieuwegein combineert een moderne afwerking met een praktische indeling op een aantrekkelijke locatie. De woning is door de jaren heen goed onderhouden en gemoderniseerd. Zo is het buitenschilderwerk in 2025 vernieuwd, de keuken in 2022 gemoderniseerd en de badkamer in 2019 gerenoveerd. 

De woning is gelegen in de wijk Fokkesteeg, een rustige woonomgeving in Nieuwegein. Op korte afstand bevindt zich Winkelcentrum City Plaza, waar je terecht kunt voor een breed aanbod van winkels en dagelijkse voorzieningen.
Daarnaast zijn er in de directe omgeving diverse (basis)scholen, sport- en recreatiemogelijkheden aanwezig. Ook het openbaar vervoer is uitstekend geregeld, met zowel bus- als tramverbindingen richting onder andere Utrecht. De uitvalswegen A2, A12 en A27 zijn eveneens snel bereikbaar.

Indeling.
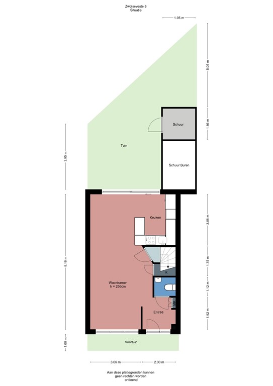
Begane grond:
Via de voordeur stappen we de woning binnen. Hier bevindt zich een garderobe, de meterkast en de modern afgewerkte toiletruimte. Aan de voorzijde bevindt zich de sfeervolle zithoek met grote ramen, die zorgen voor een ideale lichtinval en uitzicht op de straat. 

Aan de achterzijde van de woning bevindt zich de moderne keuken die in 2022 is vernieuwd. De keuken is voorzien van diverse apparatuur te weten; een kookplaat, magnetron, oven en afzuigkap. Er is voldoende ruimte voor een grote eethoek. Middels de grote schuifpui is de achtertuin bereikbaar. De achtertuin heeft een speelse indeling en gesitueerd op het noorden. In de tuin bevindt zich de aangebouwde stenen berging en een achterom. 

Eerste verdieping
Op de eerste verdieping bevinden zich drie slaapkamers van goed formaat. De slaapkamer aan de voorzijde heeft een extra raam in de zijgevel wat zorgt voor een ruimtelijk effect en veel licht. Naast deze slaapkamer bevindt zich de modern afgewerkte badkamer die in 2019 is gerenoveerd. De badkamer heeft een ligbad, wastafel met meubel, een toilet en beschikt over vloerverwarming. De eerste verdieping is voorzien van kunststof kozijnen met HR+++ glas.

2e verdieping
De 2e verdieping heeft een praktische voorzolder met extra bergruimte en een kast met de wasmachine aansluiting. 
Dankzij het Velux dakraam met HR++ glas is deze verdieping voorzien van prettig daglicht. Via de voorzolder is de ruime 4e slaapkamer bereikbaar. Deze slaapkamer heeft twee dakramen en extra bergruimte achter de knieschotten.

Bijzonderheden:
- Goed onderhouden eindwoning met 4 ruime slaapkamers;
- Het buitenschilderwerk is vernieuwd in 2025;
- De keuken is vernieuwd in 2022;
- de badkamer is gerenoveerd in 2019 en heeft vloerverwarming;
- De woning is voorzien van dubbel glas op de begane grond
- De 1e verdieping heeft kunststof kozijnen met HR+++ glas;
- Verwarming en warm water via stadsverwarming;
- De woning heeft een definitief energielabel B.

Interesse in dit huis? Schakel direct uw eigen NVM-aankoopmakelaar in.
Uw NVM-aankoopmakelaar komt op voor uw belang en bespaart u tijd, geld en
zorgen. Adressen van collega NVM-aankoopmakelaars vindt u op Funda.

Kenmerken