Beschrijving

Droom jij van gelijkvloers wonen op een unieke plek nabij het water? Dan is Vloedmonde 92 in Nieuwegein absoluut het ontdekken waard.

Deze woning is netjes onderhouden, maar dient door de koper gemoderniseerd te worden. Dit biedt een uitstekende kans om het appartement geheel naar eigen wens en stijl in te richten. Ideaal voor kopers die hun eigen woonideeën willen realiseren op een toplocatie.

Nabij het oude ‘Vreeswijk’ aan de Lekboulevard ligt deze ruime benedenwoning. De woning heeft een lichte woonkamer en een zonnige tuin op het zuiden. Het appartement is ideaal gesitueerd nabij winkels, openbaar vervoer en uitvalswegen en er is ruim voldoende parkeergelegenheid om het appartementencomplex heen. 
Je wandelt in enkele minuten naar winkelcentrum Hoog Zandveld of het pittoreske Vreeswijk. 
Daar vind je ook gezellige horeca en terrassen. De oprit van de A2 is binnen enkele minuten bereikbaar.

Het appartement beschikt over een tuin van ca. 50 m² en is gelegen op het zuiden. De tuin grenst direct aan de dijk en vormt een heerlijke buitenruimte waar je in alle rust kunt genieten van het buitenleven – een zeldzaamheid bij een appartement.

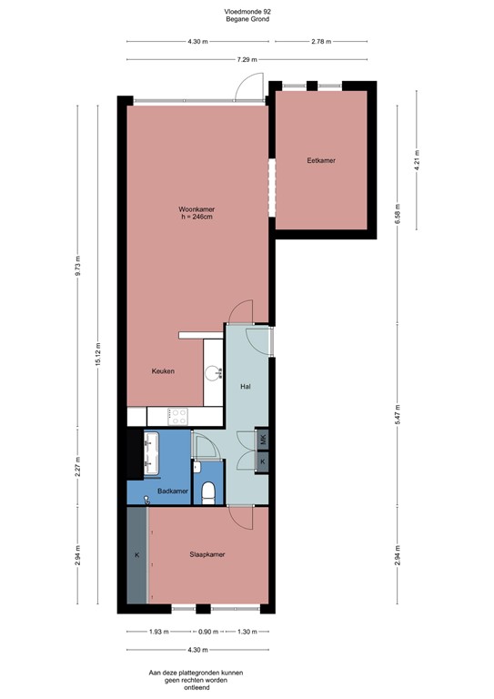
Indeling: 
Via de entree komt u binnen in de hal, die toegang biedt tot vrijwel alle vertrekken. Vanuit hier bereikt u het separate toilet, de badkamer, de slaapkamer en de leefruimtes.

De woning beschikt over een ruime en lichte woonkamer met een plafondhoogte van circa 2,46 meter. Dankzij de royale afmetingen is er volop ruimte voor een comfortabele zithoek. De woonkamer staat in directe verbinding met de eetkamer, die zich aan de achterzijde van de woning bevindt en zich uitstekend leent voor een grote eettafel. De eetkamer heeft prettig daglicht en een logische aansluiting op het leefgedeelte.

De keuken is centraal in de woning gelegen en functioneel ingericht, met voldoende werk- en kastruimte. Vanuit de keuken is er direct contact met de woonkamer, wat zorgt voor een open en aangename leefomgeving.

Aan de voorzijde van de woning bevindt zich de slaapkamer, van goed formaat en rustig gelegen. Aangrenzend vindt u de badkamer, voorzien van een douche en wastafel. Het toilet is separaat en bereikbaar vanuit de hal, wat zorgt voor extra comfort. 

Het appartement heeft ook nog eens een unieke externe berging met een wasmachine aansluiting. 

Bijzonderheden: 
- Appartement wordt verkocht met de niet-zelfbewonings clausule. 
- Benedenwoning met een zonnige tuin op het zuiden van ca. 50m2; 
- Het appartement heeft 1 ruime slaapkamer;
- Gelegen in de populaire wijk “Lekboulevard”
- Netjes onderhouden, maar volledig naar eigen wens te moderniseren; 
- Unieke externe berging met wasmachine aansluiting;
- Maandelijkse servicekosten bedragen: € 159,99;
- Het appartement heeft een definitief energielabel A.

Interesse in dit huis? Schakel direct jouw eigen NVM-aankoopmakelaar in.
De NVM-aankoopmakelaar komt op voor jouw belang en bespaart tijd, geld en zorgen.
Adressen van collega NVM-aankoopmakelaars in Nieuwegein zijn te vinden op Funda.

Kenmerken