Beschrijving

Op steenworp afstand van de Lek, in de wijk Lekboulevard, vind je dit keurig afgewerkte 3-kamer appartement met een fraai aangelegde tuin. Zowel de open keuken, het toilet, als de badkamer beschikken over een moderne uitstraling en beide slaapkamers zijn van mooi formaat en erg licht. In de directe omgeving vind je de Lek, diverse winkels, openbaar vervoer en verbindingsweg A2.

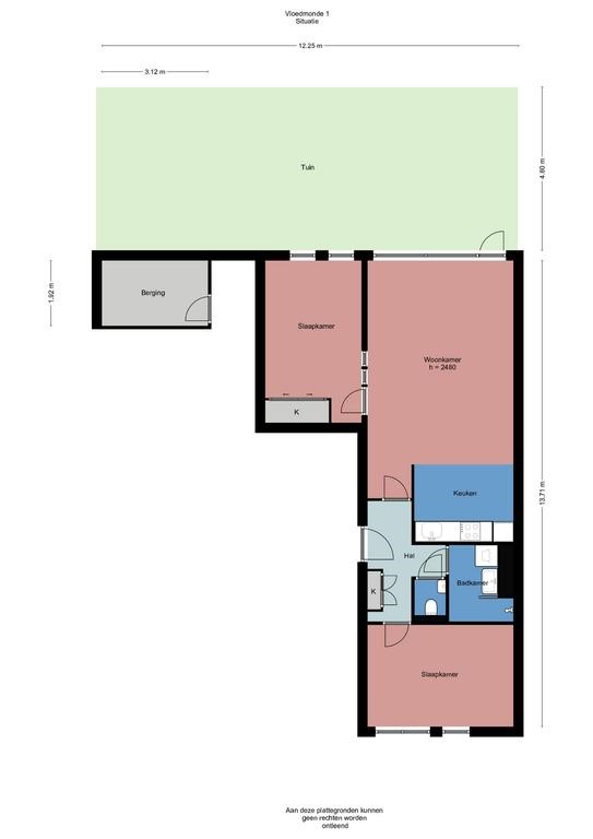
Indeling
Begane grond, entree:
Afgesloten entree met intercom installatie, bellentableau en trappenhuis. Tevens toegang naar de bergingen welke op de begane grond zijn gesitueerd. 

Begane grond, appartement:
Binnen gekomen in het appartement sta je in de hal welke toegang geeft tot de meterkast, slaapkamer aan de voorzijde, separaat toilet, badkamer en de ruime woonkamer. Zowel de badkamer als het toilet zijn volledig betegeld en modern afgewerkt. De badkamer is voorzien van een inloopdouche, wastafelmeubel en de aansluiting voor de wasmachine en droger. 

Aan de achterzijde van de woning is de lichte woonkamer te vinden met toegang tot de tuin en de 2e slaapkamer. Beide slaapkamers zijn keurig en neutraal afgewerkt. De woonkamer beschikt over voldoende ruimte voor een goede zit- en eethoek en een open keuken. Deze is modern afgewerkt en o.a. voorzien van een kookplaat, afzuigkap, koel-vriescombinatie.

Tuin:
De achtertuin is fraai aangelegd en beschikt over een fijne combinatie tussen groen en bestrating. Zo bevindt zich direct naast de woning een border en zijn er 3 verschillende plekken gecreëerd om van de zon te genieten. Daarnaast is er een separate berging.

Bijzonderheden:
- Keurig 3-kamer appartement met tuin;
- Op steenworp afstand van de Lek;
- Openbaar vervoer en de snelweg A2 om de hoek;
- Zowel een modern afgewerkte badkamer, toilet, als keuken;
- Voorzien van een definitief energielabel A;
- Maandelijkse bijdrage VVE € 114,- ;
- Warmwater en verwarming d.m.v. stadsverwarming.


Interesse in dit huis? Schakel direct uw eigen NVM-aankoopmakelaar in. 
Uw NVM-aankoopmakelaar komt op voor uw belang en bespaart u tijd, geld en zorgen. 
Adressen van collega NVM-aankoopmakelaars in Nieuwegein vindt u op Funda.

Kenmerken