Beschrijving
In de wijk ‘Blokhoeve’ bieden wij deze perfect onderhouden geschakelde woning aan met energielabel A. Aan de achterzijde ligt een fantastisch terras en een steiger aan het water. Het terras is op het zuiden gelegen en grenst aan een brede singel. De woning is instapklaar en heeft een speelse indeling, ruime, hoge maar vooral lichte kamers, een parkeerplaats op eigen terrein alsmede voldoende parkeergelegenheid in de wijk. De stad Utrecht, het openbaar vervoer en diverse uitvalswegen bevinden zich allemaal op korte afstand.
Begane grond:
Entree, hal met een tussendeur naar de inpandige berging, toegang naar de volledig betegelde toiletruimte met fontein en de sfeervolle, lichte woonkamer. De begane grond is op de hal en toiletruimte na voorzien van vloerverwarming. De woonkamer heeft een diepe trap/berg/proviandkast en de keuken is aan de voorzijde gelegen.
De ruime keuken heeft een licht werkblad met veel werkruimte en is voorzien van diverse inbouwapparatuur te weten; een inductie kookplaat, combimagnetron, een vaatwasser, oven, en een RVS afzuigkap. De woning beschikt over hoge plafonds, die zorgen voor een extra ruimtelijk gevoel.
De woonkamer heeft een schuifpui naar het riante, op het zuiden gelegen terras(29m2) met een steiger.
Vanaf het terras en de steiger is er een heerlijk weids uitzicht over het water, de groenvoorziening en de atletiekbaan.
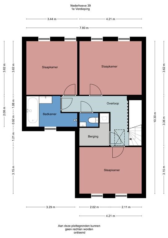
Eerste verdieping:
Overloop met vlizotrap naar zolder, toegang tot drie ruime slaapkamers, tweede separate toilet, extra berg/wasruimte met wasmachine en wasdroger aansluiting en een nette badkamer met een groot raam voor een gunstige lichtinval, een ligbad met douche, een ruime separate douchehoek en een wastafel met bijpassend badmeubel.
De royale slaapkamer aan de voorzijde heeft twee grote ramen die zorgen voor een extra ruimtelijk gevoel. De twee slaapkamers aan de achterzijde hebben weids uitzicht over het water en de omgeving.
Zolderverdieping:
De zolder is bereikbaar via de vlizotrap en biedt veel opslagruimte. Aan de voorzijde is een dakraam aanwezig voor daglicht.
Bijzonderheden:
- Ruime eengezinswoning met speelse indeling.
- nagenoeg de gehele begane grond is voorzien van vloerverwarming.
- Iedere etage heeft veel bergingsmogelijkheden.
- Centraal gelegen nabij uitvalswegen en diverse voorzieningen.
- Parkeergelegenheid op eigen grond.
- Verwarming middels stadsverwarming.
- Lichte woonkamer met groot terras( 29m2) en een steiger, gesitueerd op het zuiden.
- Weids uitzicht vanuit de woonkamer en vanaf het terras op het water en de atletiekbaan;
- Mogelijkheid voor een vaste trap naar zolder.
- Definitief energielabel A.