Beschrijving
Deze ruime 2-onder-kapwoning biedt veel licht, comfort en een eigen oprit met carport. De woning heeft een royale voortuin en een heerlijke achtertuin op het westen. Hier geniet je dagelijks van rust, ruimte en privacy – en dat allemaal op korte afstand van winkels, scholen, uitvalswegen en openbaar vervoer.
De woning is uitstekend onderhouden en de afgelopen jaren op diverse onderdelen nageïsoleerd. Ook zijn er 12 zonnepanelen aanwezig en heeft de woning een gunstig definitief energielabel A. De oprit met eigen parkeergelegenheid is voorzien van een carport waardoor de auto altijd vorstvrij staat.
Indeling.
Begane grond:
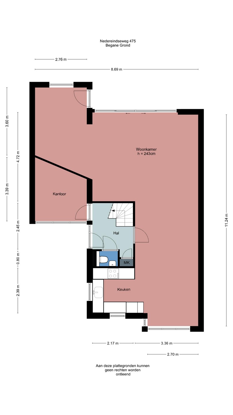
Je betreedt de woning via de verzorgde voortuin en komt binnen in de lichte hal met o.a. garderobe, toiletruimte, meterkast, trapopgang en praktische kantoor/werkruimte.
Vanuit de hal stap je de ruime woonkamer in waar de grote ramen en de nieuwe hardhouten schuifpui met HR ++ glas zorgen voor een zee aan licht en een prachtig uitzicht op de achtertuin. Dankzij de speelse indeling is er volop ruimte voor zowel een royale zithoek, een gezellige eethoek en extra speelruimte of leeshoek. De ruime zithoek heeft een gashaard, die zorgt voor extra sfeer.
De open keuken bevindt zich aan de voorzijde en is voorzien van diverse inbouwapparatuur te weten; een keramische kookplaat, afzuigkap, vaatwasser, een combi-oven en een koel- vriescombinatie. Aangrenzend aan de hal bevindt zich de praktische kantoor/werkruimte. Zowel de volledige woonkamer als keuken zijn voorzien van glad stucwerk op wanden en plafond.
Eerste verdieping:
De overloop biedt toegang tot twee(voorheen 3) ruime slaapkamers, waarvan één aan de voorzijde en één aan de achterzijde van de woning. Alle kamers zijn licht en netjes afgewerkt en bieden veel ruimte. De badkamer is uitgerust met een bad, een separate douche, een dubbele wastafel met badmeubel en het 2e toilet.
Tweede verdieping:
De tweede verdieping is verrassend ruim! Hier vind je de 3e slaapkamer met veel lichtinval dankzij de grote dakramen. De slaapkamer heeft een vaste kast voor extra bergruimte. Daarnaast bevindt zich op deze verdieping een aparte wasruimte met aansluiting voor de wasmachine en droger en de cv-installatie(Intergas 2015).
Tuin:
De achtertuin is ca. 12 meter diep en gelegen op het zonnige Westen. De tuin biedt meerdere terrassen voor zowel diner als lounge gelegenheid. In de tuin staat een vrijstaande stenen berging voor o.a fietsen. De royale voortuin is voorzien van sfeervolle beplanting.
Bijzonderheden:
- Ruime eengezinswoning met veel licht, comfort;
- De woning heeft een fraai aangelegde tuinen;
- Is voorzien van 12 zonnepanelen;
- Heeft een nieuwe hardhouten schuifpui HR ++;
- Woonkamer en masterbedroom voorzien van glad stucwerk
- De woning is de afgelopen jaren op diverse punten extra nageïsoleerd;
- Er is een eigen oprit met carport en parkeergelegenheid voor meerdere auto’s;
- Drie ruime slaapkamers en aparte wasruimte op de 2e verdieping;
- Mogelijkheid voor het creëren van 4 slaapkamers;
- Gelegen in een rustige, groene woonomgeving met alle voorzieningen in de buurt;
- De woning is voorzien van een definitief energielabel A.
Interesse in dit huis? Schakel direct uw eigen NVM-aankoopmakelaar in.
Uw NVM-aankoopmakelaar komt op voor uw belang en bespaart u tijd, geld en zorgen.
Adressen van collega NVM-aankoopmakelaars vindt u op Funda.