Beschrijving

Op zoek naar een ruime woning met veel licht, comfort en een schitterende ligging aan het water?
Aan de rustige Nedereindseweg 417 in Nieuwegein vind je deze royale 2-onder-1-kapwoning met een heerlijke achtertuin aan het water, waar je uitkijkt op het groene park. Hier geniet je dagelijks van rust, ruimte en privacy – en dat allemaal op korte afstand van winkels, scholen, uitvalswegen en openbaar vervoer.

De woning is uitstekend onderhouden en voorzien van 16 zonnepanelen, airconditioning en een definitief energielabel B. Rondom ligt een ruime, fraai aangelegde tuin en de voortuin met oprit biedt eigen parkeergelegenheid voor meerdere auto’s.

Indeling.
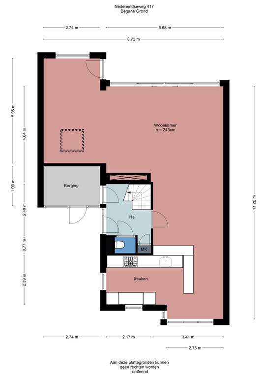
Begane grond:
Je betreedt de woning via de verzorgde voortuin en komt binnen in de lichte hal met garderobe, toiletruimte, meterkast en trapopgang. Vanuit de hal stap je de ruime woonkamer in, waar de grote ramen zorgen voor een zee aan licht en een prachtig uitzicht op de achtertuin en het water. Dankzij de gunstige indeling is er volop ruimte voor zowel een royale zithoek als een gezellige eethoek. De ruime zithoek heeft een gashaard die zorgt voor een centrale focus en een prachtige, sfeervolle blikvanger van de woonkamer.

De open keuken aan de voorzijde is modern ingericht en voorzien van diverse inbouwapparatuur te weten; een 5-pits Borretti gasfornuis met wokbrander en teppanyaki plaat, afzuigkap, vaatwasser, koffiezet apparaat, een hete lucht oven, een koelkast en een wijnkoelkast met 2 temperatuurzones(sept 2025). Aangrenzend aan de hal bevindt zich de inpandige berging, ideaal voor het stallen van fietsen of extra opslag.

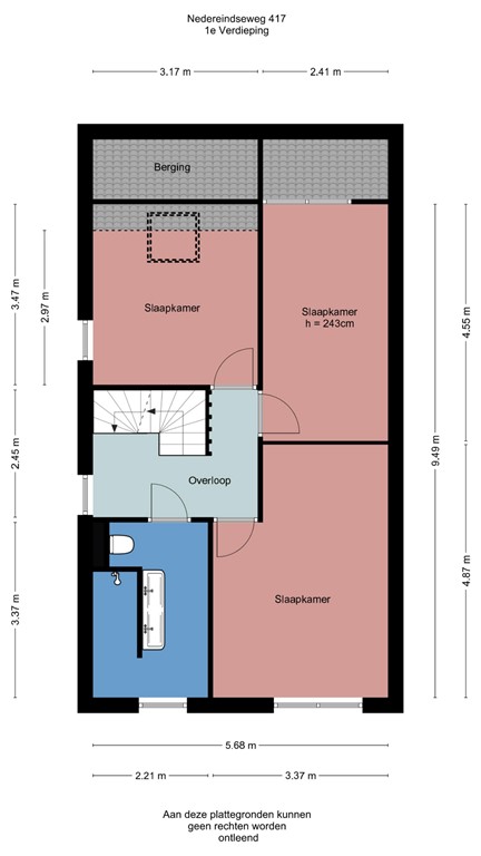
Eerste verdieping:
De overloop biedt toegang tot drie ruime slaapkamers, waarvan één aan de voorzijde en twee aan de achterzijde van de woning. Alle kamers zijn licht en netjes afgewerkt, met voldoende ruimte voor een bed, bureau en kastruimte. De modern afgewerkte badkamer is compleet uitgerust met een inloopdouche met een gewone en regendouche, een dubbele wastafel met badmeubel en het 2e toilet.

Tweede verdieping:
De tweede verdieping is verrassend ruim! Hier vind je een vierde slaapkamer met veel lichtinval dankzij de dakramen en extra bergruimte achter de knieschotten. Daarnaast is er een praktische wasruimte, met aansluiting voor wasmachine en droger, en plek voor extra opbergruimte of een werkhoek.

Buitenleven
De buitenruimte is een absoluut hoogtepunt van deze woning. De achtertuin ligt direct aan het water, met daarachter het park, kortom een unieke én rustgevende ligging. In de tuin kun je heerlijk genieten van de zon, een kop koffie aan de waterkant of een gezellige barbecue met vrienden. Rondom de woning ligt een fraai aangelegde tuin met volop groen en privacy. Aan de voorzijde vind je een ruime oprit, geschikt voor meerdere auto’s, en toegang tot de berging.

Bijzonderheden:
- Ruime eengezinswoning met veel licht, comfort en een schitterende ligging';
- De achtertuin grenst direct aan het water, met uitzicht op het park;
- Voorzien van 16 zonnepanelen;
- Airconditioning in de slaapkamer aanwezig; 
- Eigen oprit met parkeergelegenheid voor meerdere auto’s;
- Vier slaapkamers en aparte wasruimte op de 2e verdieping;
- Inpandige berging aanwezig en een vrijstaande houten berging met overkapping;
- Rustige, groene woonomgeving met alle voorzieningen dichtbij;
- De woning is voorzien van een definitief energielabel B.

Interesse in dit huis? Schakel direct uw eigen NVM-aankoopmakelaar in.
Uw NVM-aankoopmakelaar komt op voor uw belang en bespaart u tijd, geld en zorgen.
Adressen van collega NVM-aankoopmakelaars vindt u op Funda.

Kenmerken