Beschrijving

Deze riante hoekwoning heeft een fantastische ligging in de populaire wijk Galecop. De woning kenmerkt zich door de charmante architectuur en heeft een zonnige woonkamer, 2 ruime slaapkamers, een modern afgewerkte badkamer en een open zolderruimte.

Het is vrij eenvoudig een 3e slaapkamer te realiseren op de 1e verdieping. De woning is centraal gelegen. Het park bevindt zich direct naast de woning, een speeltuin is gesitueerd tegenover de woning en diverse scholen en kinderdagverblijven zijn te vinden op loopafstand. Ook het winkelcentrum van Galecop is te voet te bereiken. De uitvalswegen zijn met de auto snel bereikbaar en het bruisende stadshart van Utrecht is per fiets gemakkelijk bereikbaar.

Begane grond:
Entree, hal met meterkast, toiletruimte met toilet en fontein, trapopgang en toegang tot de woonkamer en afgesloten keuken. De woonkamer heeft een praktische trapkast en is lekker licht dankzij de ramen in zowel de zij- als achtergevel.
Via de openslaande tuindeuren is de royale achtertuin bereikbaar. Aan de voorzijde bevindt zich de ruime afgesloten keuken. De moderne keuken is in hoek opstelling geplaatst en voorzien van diverse inbouwapparatuur te weten; een inductie kookplaat, een afzuigkap, een combi-oven, een koelkast, vriezer en de vaatwasser. De gehele begane grond is voorzien van een nette, neutrale tegelvloer en lichte wandafwerking. 

Tuin: 
De achtertuin is gelegen op het oosten. Hier kan men genieten van de ochtendzon en de zij-tuin is gelegen op het zonnige zuiden. De tuin is onderhoudsvriendelijk aangelegd en heeft een vrijstaande berging en een achterom. 

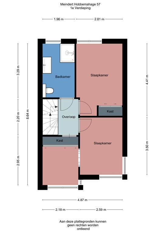
1e Verdieping:
Overloop met aan weerszijden toegang tot de slaapkamers. 
De ouderslaapkamer is aan de achterzijde gesitueerd. Aan de voorzijde bevindt zich de goed bemeten tweede slaapkamer. Deze slaapkamer heeft een vaste kastenwand.  
De volledig betegelde badkamer bevindt zich naast de ouderslaapkamer aan de achterzijde. De badkamer is voorzien van een douchehoek, een wastafel met meubel, een 2e toilet en designradiator.  

2e Verdieping:
Via de vaste trap is de zolderruimte met dakraam bereikbaar. 
Er is veel bergruimte achter de knieschotten. Deze ruimte is voor diverse doeleinden geschikt zoals het creëren van een werkruimte of realiseren van een extra slaap/hobbykamer. 
Op deze verdieping bevindt zich ook de aansluiting van de wasmachine, de wasdroger en de mechanische ventilatie. 

Bijzonderheden:
- Riante hoekwoning met een gunstige ligging in de populaire wijk Galecop;
- De woning heeft een modern afgewerkte keuken en badkamer; 
- Twee royale slaapkamers en de mogelijkheid om eenvoudig een 3e (slaap)kamer te realiseren;
- Het park bevindt zich direct naast de woning, een speeltuin tegenover de woning; 
- Op korte afstand bevinden zich alle denkbare voorzieningen en uitvalswegen; 
- Verwarming en warm water middels stadsverwarming;
- De woning heeft een definitief energielabel A.


Interesse in dit huis? Schakel direct uw eigen NVM-aankoopmakelaar in. 
Uw NVM-aankoopmakelaar komt op voor uw belang en bespaart u tijd, geld en zorgen.
Adressen van collega NVM-aankoopmakelaars vindt u op Funda.

Kenmerken