Beschrijving

Aan de Jadedrift 11 in Nieuwegein staat deze ruime eengezinswoning, gelegen in de populaire wijk Batau-Zuid. Een ideale woning voor wie op zoek is naar veel leefruimte en een fijne locatie, met volop mogelijkheden. De woning beschikt over zowel een voor- als achtertuin. De achtertuin ligt op het oosten, wat zorgt voor een prettige ochtend- en middagzon. De woning heeft in totaal 4 slaapkamers en een dakkapel aan de achterkant van de 1e verdieping. 

De ligging is een groot pluspunt: rustig wonen in een groene wijk, terwijl openbaar vervoer, een bushalte en een doorgaande weg zich op korte afstand bevinden. Voorzieningen, scholen en uitvalswegen zijn snel bereikbaar.

Indeling.
Begane grond:
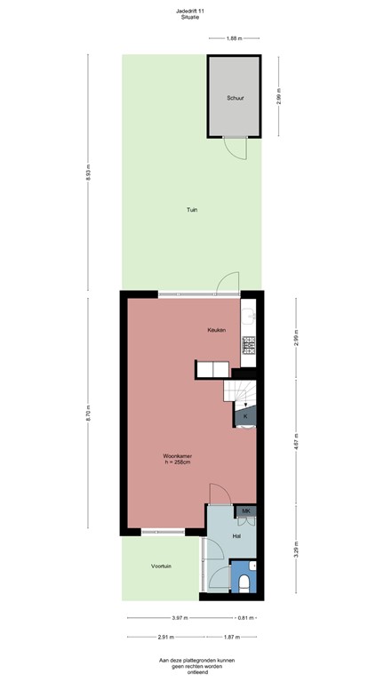
Via de voortuin bereikt men de entree van de woning. De hal met meterkast en een toiletruimte heeft een tussendeur naar de ruime en lichte woonkamer. De woonkamer heeft een praktische indeling met aan de voorzijde de zithoek.

De woonmaker heeft een prettige plafondhoogte en biedt voldoende ruimte voor een comfortabele eethoek.
In de woonkamer bevindt zich de trapopgang naar de eerste verdieping. Aan de achterzijde bevindt zich de keuken, praktisch ingedeeld en is voorzien van de gebruikelijke inbouwapparatuur te weten; een gaskookplaat afzuigkap, combi-magnetron, koelkast en een vriezer. De keuken heeft daarnaast ook voldoende werk- en kastruimte. 

Vanuit de keuken is de achtertuin bereikbaar. de achtertuin ligt op het oosten en is bijna 9 meter diep. Achterin de tuin bevindt zich een vrijstaande stenen berging en een achterom. 

Eerste verdieping:
Op deze verdieping bevinden zich drie slaapkamers, allen van een goed formaat en flexibel in te delen. 
Twee slaapkamers bevinden zich aan de voorzijde en de 3e slaapkamer ligt samen met de badkamer aan de achterzijde.
De derde slaapkamer is extra ruim dankzij de aanwezige dakkapel. De badkamer is voorzien van een ligbad met douche, een wastafel met badmeubel en een 2e toilet.

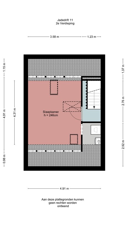
Tweede verdieping:
Via de vaste trap is de 2e verdieping bereikbaar. Hier bevindt zich een ruime vierde slaapkamer, goed bruikbaar als volwaardige slaapkamer, werkkamer of logeerruimte. Daarnaast is vanuit deze slaapkamer de praktische vliering met extra bergruimte bereikbaar.

Bijzonderheden: 
- Sutter Kars is aangewezen als Projectnotaris;
- De woning is grotendeels voorzien van kunststof kozijnen;
- Er is een dakkapel aanwezig aan de achterzijde van de 1e verdieping;
- Gezien het bouwjaar; 1976, zal er in de koopovereenkomst een asbest-clausule worden opgenomen;
- Verwarming en warm water middels stadsverwarming;
- De woning heeft een definitief energielabel C.

Interesse in dit huis? Schakel direct uw eigen NVM-aankoopmakelaar in. 
Uw NVM-aankoopmakelaar komt op voor uw belang en bespaart u tijd, geld en zorgen. 
Adressen van collega NVM-aankoopmakelaars vindt u op Funda.

Kenmerken