Beschrijving

Welkom bij deze lichte en goed onderhouden tussenwoning waar comfort, stijl en praktisch wonen perfect samenkomen. De woning is met zorg bewoond en in de afgelopen jaren op meerdere punten gemoderniseerd. Denk aan een volledig vernieuwde keuken(2023), vloerverwarming op de begane grond, gedeeltelijk voorzien van kunststof kozijnen en recent vernieuwd schilderwerk aan de voorzijde(2025).

Deze woning ligt in een rustige en kindvriendelijke woonwijk met veel groen en ruimte. In de directe omgeving vind je diverse speelvoorzieningen, basisscholen, en sport- en recreatiemogelijkheden. Ook winkels, supermarkt en uitvalswegen zijn op korte afstand bereikbaar. Een ideale plek voor gezinnen of iedereen die rustig wil wonen, maar toch alle voorzieningen binnen handbereik wil hebben.

Begane grond:
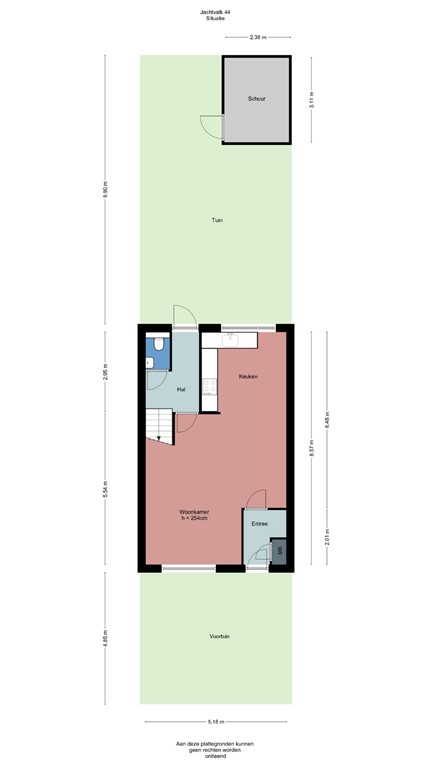
De entree met meterkast geeft direct toegang tot de ruime woonkamer. met aan de achterzijde de open keuken. 
De keuken is voorzien van een kookplaat, afzuigkap, combi-oven/combimagnetron, een koel-vriescombinatie en een vaatwasser. 

De woonkamer is licht en sfeervol en beschikt over vloerverwarming, wat bijdraagt aan een warme en uitnodigende leefruimte. Achterin bevindt zich de tweede hal met de trapopgang naar de eerste verdieping en de toiletruimte. 
Vanuit deze hal is er toegang tot de diepe achtertuin.

De achtertuin is gelegen op het noorden en biedt een fijne combinatie van bestrating en een groen gazon, waardoor er altijd een plekje is om te ontspannen of buiten te eten. Achterin de tuin staat een vrijstaande stenen berging, ideaal voor fietsen en (tuin)gereedschap. Via de achterom is de tuin ook gemakkelijk te bereiken. 

Eerste verdieping:
Op de eerste verdieping bevindt zich een overloop met toegang tot drie goed bemeten slaapkamers (twee aan de achterzijde, één aan de voorzijde) en de badkamer met ligbad/douchecombinatie, wastafel en toilet. De kunststof kozijnen aan de voorzijde zorgen voor een moderne uitstraling en minimaal onderhoud.

Tweede verdieping:
De tweede verdieping biedt een ruime vierde slaapkamer met dakramen en veel bergruimte achter de knieschotten. Op de overloop zijn de wasmachine- en drogeraansluiting en een aparte bergruimte aanwezig.

Bijzonderheden:
- Instapklare en goed onderhouden tussenwoning;
- Woonkamer met vloerverwarming;
- Keuken volledig vernieuwd in 2023;
- Gedeeltelijk voorzien van kunststof kozijnen;
- Achterdeur vervangen voor kunststof exemplaar in 2023;
- Schilderwerk voorzijde uitgevoerd in 2025;
- Verwarming via stadsverwarming, met huurboiler(Eneco);
- De woning heeft een definitief energielabel C.

Interesse in dit huis? Schakel direct uw eigen NVM-aankoopmakelaar in. 
Uw NVM-aankoopmakelaar komt op voor uw belang en bespaart u tijd, geld en zorgen.
Adressen van collega NVM-aankoopmakelaars vindt u op Funda.

Kenmerken