Beschrijving

Deze uitstekend onderhouden en royaal bemeten eindwoning biedt alle ruimte die je nodig hebt. Met maar liefst vijf royale slaapkamers, waarvan drie op de eerste verdieping en twee op de tweede verdieping met een aparte wasruimte,  is dit de ideale gezinswoning. De moderne afwerking zorgt voor een frisse, eigentijdse uitstraling.
Dankzij de stadsverwarming woon je hier volledig gasloos en heb je geen omkijken naar een cv-installatie. Comfortabel wonen zonder zorgen!

De woning is gelegen in een rustige en kindvriendelijke wijk in Nieuwegein. In de directe omgeving vindt u diverse scholen, kinderopvang, speeltuinen, sport- en recreatievoorzieningen en winkelcentra. Er is uitstekende bereikbaarheid met openbaar vervoer en de auto. De A2, A12 en A27 liggen om de hoek, dus er is een snelle goede verbinding naar grote steden. Daarnaast ligt Utrecht op fietsafstand, ideaal voor wie werkt of studeert in de stad, maar toch rustig en groen wil wonen.

Indeling.
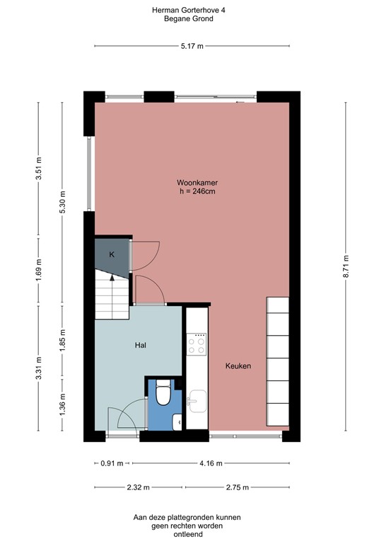
Begane grond:
Via de entree komt u in de hal, waar zich de meterkast, trapopgang en een nette toiletruimte bevinden. Vanuit de hal betreedt u de lichte, royale woonkamer. Dankzij de grote ramen in de voor-, zij- en achtergevel stroomt het daglicht rijkelijk naar binnen. De schuifpui met triple glas en ingebouwde hor zorgt niet alleen voor extra licht, maar ook voor een prettige verbinding met de tuin.

De woonkamer biedt volop ruimte voor een comfortabele zithoek én een royale eettafel – ideaal voor gezellige avonden met familie of vrienden. Aan de voorzijde van de woning bevindt zich de moderne keuken, praktisch ingedeeld en compleet uitgerust met luxe inbouwapparatuur: een 5-pits inductie kookplaat, afzuigkap, combi-stoomoven, magnetronoven, warmhoudlade, Quooker, ruime koelkast, separate vriezer en vaatwasser.

De woning heeft een voor- en achtertuin. De zonnige achtertuin is ca. 10 meter diep en heeft een vrijstaande stenen berging en achterom. Dankzij de hoekligging en de oriëntatie op het zuidoosten is vrijwel de gehele dag volop zonlicht in de tuin. Dankzij het elektrische zonnescherm houdt u in de zomer de meeste zonnestralen buiten.

Eerste verdieping:
Op de eerste verdieping bevinden zich drie ruime slaapkamers en een nette badkamer. De badkamer is volledig betegeld en uitgerust met een inloopdouche, wastafel, tweede toilet en luxe Sunshower. Via de vaste trap is de ruime 2e verdieping bereikbaar.

Tweede verdieping:
Op deze verdieping treft u nog twee ruime slaapkamers en een aparte wasruimte met veel bergruimte. Via het vlizoluik op de overloop is de vliering bereikbaar voor extra bergruimte.

Bijzonderheden:
- Royale hoekwoning van ca. 128 m² woonoppervlakte;
- Maar liefst 5 slaapkamers;
- 14 zonnepanelen;
- Aparte wasruimte op de 2e verdieping;
- Lichte en ruime woonkamer met nette half open keuken;
- Gelegen in de rustige en kindvriendelijke wijk Galecop;
- Voorzieningen, winkels en scholen in de buurt;
- Uitstekende bereikbaarheid dankzij het openbaar vervoer en A2, A12 en A27;
- Verwarming en warm water middels stadsverwarming;

Interesse in dit huis? Schakel direct uw eigen NVM-aankoopmakelaar in.
Uw NVM-aankoopmakelaar komt op voor uw belang en bespaart u tijd, geld en zorgen.
Adressen van collega NVM-aankoopmakelaars vindt u op Funda.

Kenmerken