Beschrijving

Ben je op zoek naar een woning waar je écht niets meer aan hoeft te doen? Zoek niet verder. Graaf Willemlaan 92 is een tot in de puntjes gemoderniseerd appartement dat de perfecte balans biedt tussen een hoogwaardig afwerkingsniveau, een heerlijke tuin en een uiterst duurzaam karakter.
 
Vergeet klussen en verbouwen. De afgelopen jaren is dit appartement volledig getransformeerd tot een moderne droomwoning. Alles ademt kwaliteit: van de strakke wandafwerking en moderne vloeren tot het hoogwaardige sanitair. Het gehele appartement is tevens voorzien van vloerverwarming. Dankzij het zeer gunstige Energielabel A+ geniet je hier niet alleen van maximaal wooncomfort, maar ook van zeer lage energielasten.
 
Indeling.
Begane grond:
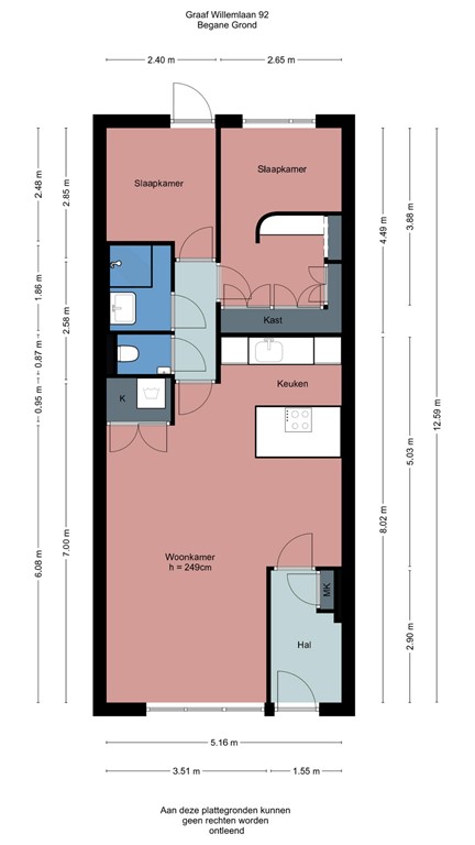
De slimme indeling van dit appartement (begane grond) valt direct op zodra je binnenstapt; Je komt binnen via de hal met meterkast, die direct toegang biedt tot de royale woonkamer. De woonkamer is ruim en licht dankzij de grote ramen aan de voorzijde. De open keuken(2025) is compleet met een stijlvol kookeiland en diverse inbouw apparatuur te weten; inductie kookplaat met down draft afzuiging, een stoom-oven, koel-vriescombinatie en een vaatwasser. Via de woonkamer is ook de praktische wasruimte/berging bereikbaar. 
 
Aan de achterzijde bevinden zich de twee slaapkamers. De ouderslaapkamer is multifunctioneel en beschikt naast een handige vaste kastenwand ook over een werkhoek.
 
Vanuit de tussenhal bereik je de moderne badkamer(2025) met inloopdouche en wastafel, een separate toiletruimte. Via de 2e slaapkamer aan de achterzijde heb je toegang tot de heerlijke achtertuin. Hier geniet je in alle rust van je privacy. De tuin is recent voorzien van een ruime houten berging, perfect voor het stallen van fietsen of extra opslag.
 
Het appartement is gelegen in de wijk Fokkesteeg in Nieuwegein en hier woon je zeer centraal. Winkels, parken en uitvalswegen liggen letterlijk om de hoek, waardoor dit de ideale uitvalsbasis is voor zowel werk als ontspanning. Om de hoek ligt het prachtige stadspark Oudegein. Hier kun je wandelen, sporten of een bezoek brengen aan het Natuurkwartier met de kinderboerderij en de poldermolen.

Ook zijn er diverse sportfaciliteiten, scholen en kinderopvang in de directe nabijheid.
De bereikbaarheid is uitstekend. De bushalte en tramhalte Fokkesteeg liggen op loopafstand, waardoor je binnen binnen korte tijd bij Utrecht Centraal of het Utrecht Science Park bent. Ook de uitvalswegen naar de A2, A12 en A27 zijn zeer snel bereikbaar.
 
Bijzonderheden:
- Goed onderhouden en volledig gerenoveerd 3-kamerappartement op de begane grond;
- Het appartement heeft een moderne keuken uit 2025 met diverse inbouwapparatuur;
- De badkamer is nog geen jaar oud en modern afgewerkt;
- Achtertuin op het westen met vrijstaande houten berging en achterom;
- Het gehele appartement is voorzien van vloerverwarming;
- Verwarming en warm water via stadsverwarming;
- Actieve Vereniging van Eigenaren; maandelijkse bijdrage € 152,55;
- Uitstekende bereikbaarheid met openbaar vervoer en uitvalswegen;
- Er is een zelfbewoningsplicht tot 2 mei 2028. 
- Definitief energielabel A+.

Kenmerken