Beschrijving

Welkom aan de Gerard Walschaphove 26 in Nieuwegein – een moderne, uitstekend onderhouden eengezinswoning met een uitgebouwde woonkamer, vloerverwarming, airconditioning op de hoofdslaapkamer en een dakkapel op de tweede verdieping. De woning is stijlvol en eigentijds afgewerkt en beschikt over een moderne keuken en een luxe badkamer. Gelegen in de geliefde en kindvriendelijke wijk Galecop, met alle voorzieningen in de directe omgeving.

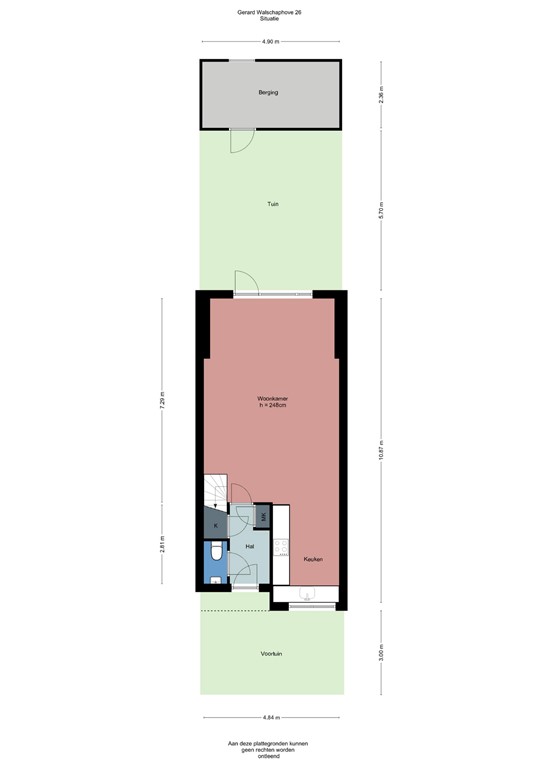
Indeling.
Begane grond:
Entree met hal, meterkast, toilet en trapopgang naar de eerste verdieping. Vanuit de hal stap je binnen in de lichte en uitgebouwde woonkamer met een moderne afwerking. De woonkamer is voorzien van vloerverwarming met een fraaie vloerafwerking, wat zorgt voor een stijlvolle en warme uitstraling.

Aan de voorzijde bevindt zich de nette open keuken, uitgevoerd in een moderne kleurstelling en voorzien van diverse inbouwapparatuur zoals een inductie kookplaat met dowdraft afzuiging, combi-oven en een vaatwasser.

Eerste verdieping:
Overloop met toegang tot twee goed bemeten slaapkamers en de badkamer.
De ouder slaapkamer aan de achterzijde beschikt over vaste kasten en een airco-installatie, ideaal tijdens warme zomerdagen. De tweede slaapkamer aan de voorzijde is eveneens ruim bemeten.

De badkamer is in 2023 gemoderniseerd en luxe uitgevoerd met een inloopdouche, strak wastafelmeubel, modern sanitair en stijlvolle betegeling. Een heerlijke ruimte om de dag ontspannen te beginnen of te eindigen.

Tweede verdieping:
Via een vaste trap bereik je de zolderverdieping met dakkapel. Deze royale ruimte kan dienen als derde slaapkamer, werkkamer of hobbyruimte. Achter de knieschotten en in de berging is extra opbergruimte aanwezig.

Buitenruimte:
De achtertuin is verzorgd aangelegd en grotendeels bestraat, met een berging en achterom. Hier kun je heerlijk genieten van het buitenleven in een onderhoudsvriendelijke omgeving.

Bijzonderheden: 
- Uitgebouwde tussenwoning, gelegen in de geliefde en kindvriendelijke wijk Galecop;
- Moderne afwerking en instapklaar;
- Luxe badkamer met hoogwaardige materialen;
- Nette keuken met diverse inbouwapparatuur;
- Airco in de ouderslaapkamer;
- Bijna de volledige woning is voorzien van rolluiken;
- Dakkapel op de tweede verdieping;
- Onderhoudsvriendelijke tuin met berging en achterom;
- Gelegen nabij scholen, winkels en uitvalswegen (A2, A12 en A27);
- Verwarming en warm water middels stadsverwarming;
- De woning heeft een definitief energielabel A.

Interesse in dit huis? Schakel direct uw eigen NVM-aankoopmakelaar in.
Uw NVM-aankoopmakelaar komt op voor uw belang en bespaart u tijd, geld en zorgen.
Adressen van collega NVM-aankoopmakelaars vindt u op Funda.

Kenmerken