Beschrijving

Deze ruime 2-onder-1-kapwoning grenst aan het water en is gelegen op een perceel van 244 m2. Dankzij de oprit is er parkeergelegenheid op eigen terrein. Op de begane grond heeft deze woning een praktische multifunctionele kamer die mogelijkheid biedt voor kantoor aan huis of een slaapkamer op de begane grond.

De achtertuin heeft een overdekt terras en grenst aan het water. Vanaf de aanlegsteiger sta je binnen mum van tijd midden op het Lingemeer!

Indeling

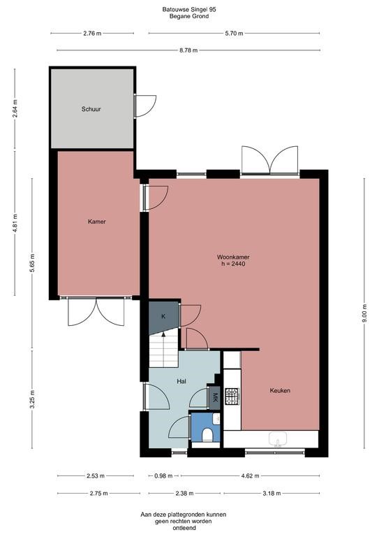
Begane grond:
Entree, hal, meterkast, toiletruimte met fontein, trapopgang naar de eerste verdieping en toegang tot de woonkamer.
De ruime woonkamer heeft een tuingerichte eethoek en een half open keuken. De keuken is geplaatst in hoekopstelling en voorzien van diverse apparatuur te weten; een afzuigkap, 4-pits gasfornuis, elektrische combi-oven/magnetron, koelkast en de vaatwasser.

Via de woonkamer is het overdekte terras, de aangebouwde stenen berging en de diepe achtertuin met aanlegsteiger te bereiken. De achtertuin is gelegen op oosten, grenst aan het water en heeft een eigen aanlegsteiger.

1e verdieping
Overloop, toegang tot de 3 royale slaapkamers en de badkamer. Twee slaapkamers bevinden zich aan de achterzijde.
De badkamer en de 3e slaapkamer bevinden zich aan de voorzijde. Deze slaapkamer is voorzien van een dakkapel met een rolluik. De volledig betegelde badkamer is voorzien van een dubbele wastafel met badmeubel en een doucheruimte.


2e verdieping:
Via de vaste trap is de open 2e verdieping bereikbaar. Hier bevindt zich de wasmachine aansluiting, de opstelplaats van de cv-ketel en de mechanische ventilatie. Deze ruimte beschikt over een groot Velux dakraam en praktische bergruimte.

Bijzonderheden:
- Ruime 2-onder-1-kapwoning gelegen aan het water;
- Er zijn 10 zonnepanelen aanwezig (leasecontract tot 1-11-2032);
- Warm water en verwarming middels een Intergas (huur)ketel uit 2020;
- Dak van de aanbouw is een jaar geleden volledig vernieuwd;
- De woning heeft een praktische multifunctionele kamer op de begane grond;
- Mogelijkheid tot kantoor aan huis;
- De woning heeft een geldig energielabel A.


Interesse in dit huis? Schakel direct uw eigen NVM-aankoopmakelaar in.
Uw NVM-aankoopmakelaar komt op voor uw belang en bespaart u tijd, geld en zorgen.
Adressen van collega NVM-aankoopmakelaars vindt u op Funda.

Kenmerken